KLØFTA Østbysvingen 2C
KLØFTA - Hyggelig 2 roms selveierleilighet - Markterrasse - 2 stk parkeringsplasser - Lave felleskostnader
- kr 2 650 000
- BRA-i 48 m²
- 1 soverom
- Prisantydningkr 2 650 000
- Omkostningerkr 67 600
- Totalpris inkl. omkostningerkr 2 717 600
- ObjektstypeLeilighet
- EierformEierseksjon
- Byggeår1999
- Soverom1
- Felleskostnaderkr 2 000
- Tomt1 091.5 m²
- Eierform tomtEiet
- 2 650 000 (Prisantydning) -------------------------------------------------------- Omkostninger 66 250 (Dokumentavgift) 260 (Panteattest kjøper) 545 (Tinglysningsgebyr pantedokument) 545 (Tinglysningsgebyr skjøte) 10 900 (Boligkjøperforsikring ? fem års varighet (valgfritt)) 2 800 (Boligkjøperforsikring Help Pluss - ett års varighet (valgfritt)) -------------------------------------------------------- 67 600 (Omkostninger totalt) 78 500 (med Boligkjøperforsikring - fem års varighet) 81 300 (med Boligkjøperforsikring inkludert ett år med Help Pluss) -------------------------------------------------------- 2 717 600 (Totalpris. inkl. omkostninger) 2 728 500 (Totalpris. inkl. omkostninger (med Boligkjøperforsikring - fem års varighet)) 2 731 300 (Totalpris. inkl. omkostninger (med Boligkjøperforsikring inkludert ett år med Help Pluss)) -------------------------------------------------------- Regnestykket forutsetter at det kun tinglyses ett pantedokument og at eiendommen selges til prisantydning. Det tas forbehold om endringer i offentlige avgifter/gebyrer.
Meld deg på visning!
Påmelding
Velkommen til Østbysvingen 2C, en hyggelig selveierleilighet med sentral beliggenhet på Kløfta
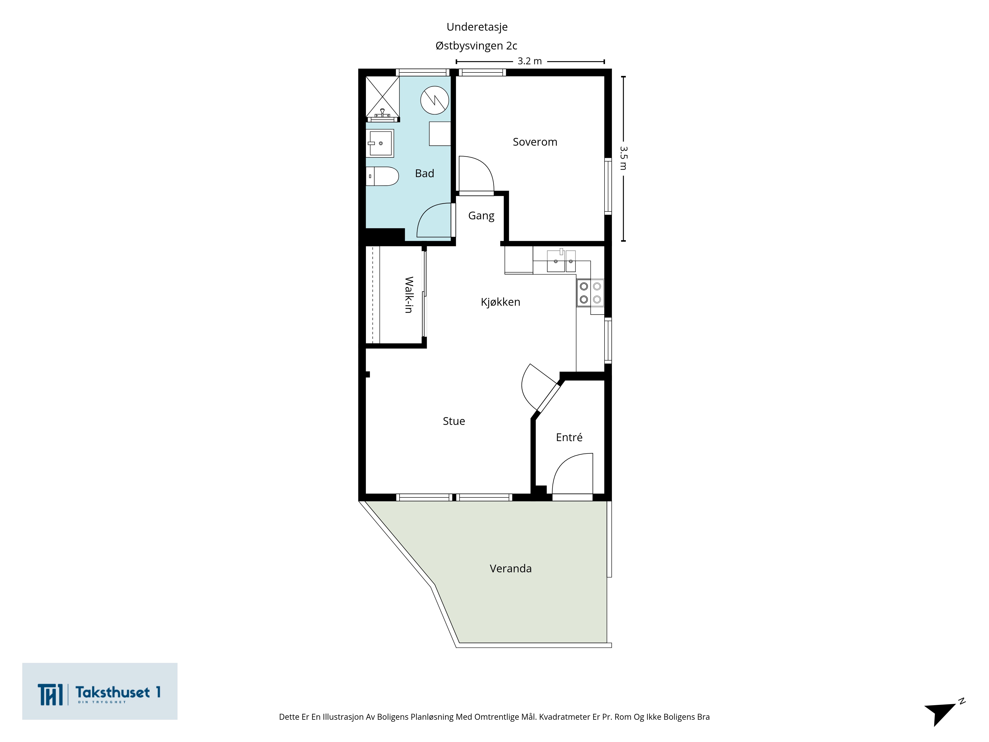
Leiligheten har en god planløsning med entré, stue, kjøkken, soverom og bad. I tillegg følger det en romslig markterrasse og 2 stk parkeringsplasser rett ved inngangsdøren.
Nabolaget er ideelt for familier med barn, godt voksne og etablerere, med kort avstand til skoler, barnehager og offentlig transport.
Velkommen til visning!
Østbysvingen 2C, Akershus
- Tomt
1091.5m²
Beskrivelse av tomt
Eiet tomt.
Beliggenhet
Østbysvingen 2C ligger i et attraktivt og barnevennlig område på Kløfta, spesielt anbefalt for familier med barn, etablerere og godt voksne. Nabolaget er kjent for sitt trygge og sosiale miljø, med omtenksomme naboer og et trivelig miljø for barn å vokse opp i. Offentlig transport er lett tilgjengelig med Kløfta bosenter kun 2 minutters gange unna, og Kløfta stasjon 13 minutter unna. Herfra går togene R13 og R13x, som gir enkel tilgang til Oslo og Gardermoen. Busslinje 436 er også i nærheten, kun 0.2 km fra boligen. For familier med barn er det flere skoler i nærheten, inkludert Åreppen skole (1-7 kl.) som ligger 0.9 km unna, og Vesong ungdomsskole (8-10 kl.) 1.4 km unna. Jessheim videregående skole er også tilgjengelig, kun 8.4 km fra boligen. Dagligvarehandelen er praktisk med Rema 1000 Kløfta og Meny Romerikssenteret begge innen 11 minutters avstand. Romerikssenteret tilbyr også et bredt utvalg av varer og tjenester, inkludert Boots apotek. For de som er glad i sport og fritidsaktiviteter, ligger Kløfta Idretts- og aktivitetspark kun 0.9 km unna, med fasiliteter for ballspill, fotball, sandhåndball og mer. Det er også flere barnehager i nærheten, som Alvheim Barnehage kun 3 minutters gange fra boligen. Området har lite støynivå og lett tilgjengelig gateparkering, noe som gjør det ideelt for både bilbrukere og de som foretrekker offentlig transport.
Adkomst
Det vil bli skiltet med visningsskilt ved fellesvisninger.
Barnehage/skole/fritid
Barnehager
Alvheim Barnhage (1-5 år) - 3 min gange
Olstadmoen barnehage (0-5 år) - 11 min gange
Mamma Mia barnehage (0-5 år) - 13 min kjøring
Skoler
Åreppen skole (1-7 kl.) - 11 min gange
Bakke skole (1-7 kl.) - 17 min gange
Vesong ungdomsskole (8-10 kl.) - 16 min gange
Jessheim videregående skole (videregående skole) - 12 min kjøring
Sport og trening
Kløfta Idretts - og aktivitetspark - 10 min gange
Ballspill, fotball, sandhåndball, sandvo...
0.9 km
Åreppen skole - 11 min gange
Aktivitetshall, ballspill
0.9 km
Sportica Kløfta - 11 min gange
Nemus Fysio - 12 min gange
Se vedlagt nabolagsprofil for mer informasjon.
Byggemåte
Grunnmuren er oppført i betong. Veggkonstruksjonen er oppført i tre og er utvendig kledd med liggende panel. Taket har en saltaksform og er tekket med betongstein. Etasjeskillerne er et trebjelkelag, og kjellergulvet er støpt. Boligen har vinduer med 2-lags isolerglass og en ytterdør med glass. Det er etablert en markterrasse i impregnert trevirke. TG3 - Store eller alvorlige avvik: - Våtrom - Fuktmåling Avvik: Det er foretatt hulltaking med 73mm hullbor fra tilstøtende soverom. Det registreres en fuktskade i konstruksjonen. TG2 - Avvik som kan kreve tiltak: - Vinduer og dører Avvik: Karmer er værslitte. - Kjøkken - Overflater og innredning Avvik: Det registreres fukt/skader rundt vask. Benkeplate er fuktskadet. Kjøkkeninnredningen har skader. - Avløpsrør Avvik: Avløpsanlegg er fra byggeåret, og nådd en alder som tilsier at skader/lekkasjer kan oppstå. - Vannledninger Avvik: Fordelerskap er plassert på bad. Det ble ikke registrert behov for tiltak, men med tanke på alder kan skader plutselig oppstå på anlegg av eldre årgang. - Elektrisk Avvik: Det er ikke fremlagt samsvarserklæring på elektrisk arbeid/anlegg montert etter 01.01.1999. Dette er en forenklet kontroll begrenset til de spørsmål og undersøkelser som forskrift til avhendingslova (tryggere bolighandel) § 2-18 inneholder. Dette kan ikke sammenlignes med en kontroll utført av offentlig myndighet (Det lokale el-tilsyn) eller registrert elektrovirksomhet, og en bygningssakkyndig har verken kompetanse eller lov til å foreta en slik kontroll. Tilstandsgraden er vurdert ut fra den forenklede og begrensede kontrollen som forskriften inneholder. El-anlegget kan ha feil og mangler som en slik forenklet undersøkelse ikke vil avdekke. Vær derfor oppmerksom på denne risikoen, og søk videre veiledning eller få en fullstendig kontroll utført av registrert elektrovirksomhet. - Våtrom - Overflater Avvik: Vindu er plassert i våtsone og utsettes for direkte vannsprut. Dersom det ikke er spesielt tilpasset våtrom, øker dette risikoen for fuktopptak, råteskader og lekkasje gjennom vindus-konstruksjonen. Karmlist og foringer på vindu er ikke fuktbestandig og vil kunne svelle, misfarges og brytes ned ved fuktbelastning. Dette kan føre til råte, muggvekst og behov for utskiftning. Det er svertesopp i fuger inne i dusjsonen. - Våtrom - Membran, tettesjikt og sluk Avvik: Tettesjikt har nådd en alder som gjør tettheten usikker i tiden som kommer. - Våtrom - Sanitærutstyr Avvik: Det er fuktskader på baderoms innredningen pga. vannsøl
Sammendrag selgers egenerklæring
Selger har ikke bebodd eiendommen og har derfor ikke spesifikk kunnskap om den. Det kan derfor være skader og andre forhold ved eiendommen som ikke er spesifikt opplyst. Kjøper oppfordres derfor til å foreta en særlig grundig undersøkelse av eiendommen, gjerne med bistand av teknisk sakkyndig.
Innhold
Entré, stue, kjøkken, soverom og bad. Terasse og balkongareal.
Standard
Kjøkken Kjøkkeninnredning med glatte fronter og benkeplate i laminat med nedfelt vaskekum i stål. Kjøkkenet har mekanisk avtrekk. Bad Badet har flislagt gulv og vegg. Av utstyr er det etablert servant, klosett og en åpen dusj med forheng. Det er opplegg for vaskemaskin. Badet har mekanisk avtrekk og sluk i plast. Det er foretatt hulltaking med 73mm hullbor fra tilstøtende soverom. Tekniske installasjoner - Vannledninger: Rør-i-rør system fra 1999. Fordelerskap er plassert på bad. - Avløpsrør: Avløpsrør i plast fra 1999. - Ventilasjon: Boligen har naturlig ventilasjon. - Varmtvannstank: Varmtvannsbereder på 200 liter fra 2013, plassert på gulv på bad. - Branntekniske forhold: Det mangler røykvarsler.
Innbo og løsøre
Bransjens liste over løsøre og tilbehør legges til grunn for salget dersom ikke annet fremkommer av salgsoppgaven. Listen følger vedlagt salgsoppgaven. Det er full avtalefrihet om hva som skal følge med bolig og fritidsbolig ved salg. Hvis hvitevarer og/eller annet teknisk utstyr medfølger, gis det ingen garantier i forhold til tilstand, funksjonalitet og levetid på disse.
Hvitevarer
Kun hvitevarer som er spesifikt angitt i salgsoppgaven, følger med. Dette gjelder uavhengig av om hvitevaren(e) eventuelt kan anses som integrerte.
Moderninseringer og påkostninger
2013:
? Varmtvannsbereder
Parkering
Parkering på sameiets tomt. Seksjonen er tildelt to parkeringsplasser rett ved inngangsdøren.
Diverse
Etter eierseksjonsloven § 23 kan ingen kjøpe en boligseksjon hvis kjøpet fører til at man, direkte eller indirekte, blir eier av flere enn to boligseksjoner i eierseksjonssameiet. Begrensningen gjelder ikke kjøp av fritidsboliger. Det finnes også enkelte andre unntak i bestemmelsen. Foretaket samarbeider med følgende foretak som tilbyr produkter eller tjenester i forbindelse med oppdraget: - Help forsikring - Södeberg & Partners - Banker i Eika-alliansen - Leverandører knyttet til Aktiv pluss (for eksempel flyttehjelp) - Leverandører knyttet til Visma Meglerfront (for eksempel strømleverandører)
Prisantydning inkl. omkostninger
2 650 000 (Prisantydning) -------------------------------------------------------- Omkostninger 66 250 (Dokumentavgift) 260 (Panteattest kjøper) 545 (Tinglysningsgebyr pantedokument) 545 (Tinglysningsgebyr skjøte) 10 900 (Boligkjøperforsikring ? fem års varighet (valgfritt)) 2 800 (Boligkjøperforsikring Help Pluss - ett års varighet (valgfritt)) -------------------------------------------------------- 67 600 (Omkostninger totalt) 78 500 (med Boligkjøperforsikring - fem års varighet) 81 300 (med Boligkjøperforsikring inkludert ett år med Help Pluss) -------------------------------------------------------- 2 717 600 (Totalpris. inkl. omkostninger) 2 728 500 (Totalpris. inkl. omkostninger (med Boligkjøperforsikring - fem års varighet)) 2 731 300 (Totalpris. inkl. omkostninger (med Boligkjøperforsikring inkludert ett år med Help Pluss)) -------------------------------------------------------- Regnestykket forutsetter at det kun tinglyses ett pantedokument og at eiendommen selges til prisantydning. Det tas forbehold om endringer i offentlige avgifter/gebyrer. - Oppvarming
Elektrisk oppvarming med panelovner og varmekabler
Energiklasse
D
Info energiklasse
Alle som skal selge eller leie ut eiendom må som hovedregel energimerke boligen og fremskaffe en energiattest. Unntak gjelder blant annet for frittstående bygninger med bruksareal på mindre enn 50 m². Det er eier som plikter å fremlegge energiattest og eier er selv ansvarlig for at opplysningene er riktige. For ytterligere informasjon se www.energimerking.no. Dersom eier har energimerket boligen vil komplett energiattest fås ved henvendelse til megler. - Kommunale avgifter
9472
Kommunale avgifter år
2025
Info kommunale avgifter
De kommunale avgiftene omfatter vann- og avløpsgebyr, renovasjonsgebyr samt feie- og tilsynsavgift. Det gjøres oppmerksom på at det kan forekomme variasjon i avgiftene som følge av forbruk og eventuelle kommunale endringer av gebyr/avgift
Formuesverdi primær
585059
Formuesverdi primær år
2023
Formuesverdi sekundær
2340234
Formuesverdi sekundær år
2023
Tilbud lånefinansiering
Aktiv Eiendomsmegling samarbeider med sparebankene i Eika Alliansen om formidling av finansielle tjenester. Ta gjerne kontakt med megler for formidling av et uforpliktende tilbud om finansiering. Meglerforetaket kan motta provisjon ved formidling av finansielle tjenester.
Felleskostnader pr. mnd
2000
Felleskostnader inkluderer
Husforsikring, nettleie, snømåking, utvendig vedlikehold mm.
Regnskap/budsjett/kostnadsøkninger
Vi oppfordrer alle til å sette seg inn i regnskap, budsjett og årsberetning. Det gjøres oppmerksom på at fellesgjeld og felleskostnader kan variere over tid som følge av beslutninger foretatt av styret/årsmøtet/generalforsamling.
Sameiets forsikringsselskap
Sparebank 1
Vedtekter/husordensregler
Vi oppfordrer alle til å sette seg inn i gjeldende vedtekter og husordensregler. Dokumentene følger vedlagt i salgsoppgaven.
Dyrehold
Dyrehold er tillatt iht. sameiet husordensregler. - Tinglyste heftelser og rettigheter
På eiendommen er det tinglyst følgende heftelser og rettigheter som følger eiendommens matrikkel ved overskjøting til ny hjemmelshaver: 3209/15/255/3: 19.11.1997 - Dokumentnr: 10137 - Registrering av grunn Denne matrikkelenhet opprettet fra: Knr:3209 Gnr:15 Bnr:11 Utskilt fra denne matrikkelenhet: Knr:3209 Gnr:15 Bnr:255 04.12.2001 - Dokumentnr: 14857 - Seksjonering Opprettet seksjoner: Snr: 3 Formål: Bolig Sameiebrøk: 48/294 01.01.2020 - Dokumentnr: 1581828 - Omnummerering ved kommuneendring Tidligere: Knr:0235 Gnr:15 Bnr:255 01.01.2024 - Dokumentnr: 185183 - Omnummerering ved kommuneendring Tidligere: Knr:3033 Gnr:15 Bnr:255
Ferdigattest/brukstillatelse
Det er utstedt ferdigattest på eiendommen datert 20.11.2003. Det er mottatt byggetegninger fra kommunen. Innholdet i disse er i samsvar med dagens bruk.
Vei, vann og avløp
Adkomstvei: Eiendommen har adkomst via privat veg. Tilknytning vann: Tilkn. off. vannverk. Tilknytning avløp: Offentlig kloakk.
Regulerings- og arealplanner
Eiendommene er regulert til bolig i reguleringsplan for «Ospli m.m., Kløfta» m/best. vedtatt 16.06.1982. Endringer: mindre vesentlig endring vedtatt 09.04.1997. Avsatt i kommuneplanen til: boligbebyggelse - nåværende vedtatt 23.03.2021. Avsatt i kommunedelplan for Kløfta til: boligbebyggelse - nåværende vedtatt 03.09.2012. Grenser inntil reguleringsendring av gang/sykkelveg innenfor: «Ospli, Kløfta» vedtatt 01.09.2003.
Adgang til utleie
Utleie er tillatt iht. vedtekter og etter godkjenning fra styret.
Legalpant
De andre sameierne har panterett i seksjonen for krav mot sameieren som følger av sameieforholdet. Pantekravet kan ikke overstige et beløp som for hver bruksenhet svarer til 2 G (folketrygdens grunnbeløp). Kommunen har legalpant i eiendommen for forfalte krav på eiendomsskatt, og kommunale avgifter/gebyrer.
Kommentar bo- og driveplikt
Det er ikke bo- og driveplikt på eiendommen.
Kommentar konsesjon
Erverv av eiendommen er konsesjonsfritt.
Kommentar odelsrett
Det er ikke odel på eiendommen. - Lovanvendelse
Eiendommen skal overleveres til kjøper i tråd med det som er avtalt. Det er viktig at kjøper setter seg grundig inn i alle salgsdokumentene, herunder salgsoppgave, tilstandsrapport og selgers egenerklæring. Kjøper anses kjent med forhold som er tydelig beskrevet i salgsdokumentene. Forhold som er beskrevet i salgsdokumentene kan ikke påberopes som mangler. Dette gjelder uavhengig av om kjøper har lest dokumentene. Alle interessenter oppfordres til å undersøke eiendommen nøye, gjerne sammen med fagkyndig, før bud inngis. Kjøper som velger å kjøpe usett, kan som hovedregel ikke gjøre gjeldende som mangel noe kjøper burde blitt kjent med ved undersøkelse av eiendommen, eller som er tydelig beskrevet i salgsdokumentene. Hvis noe trenger avklaring, anbefaler vi at kjøper rådfører seg med eiendomsmegler eller en fagkyndig før det legges inn bud. Kjøper har krav på at eiendommen er i henhold til avtalen. Hvis det ikke er avtalt noe særskilt, kan eiendommen ha en mangel dersom den ikke er slik kjøper må kunne forvente ut ifra blant annet boligens alder, type og synlige tilstand. Det samme gjelder hvis det er holdt tilbake eller gitt uriktige opplysninger om eiendommen som ikke er rettet i tide på en tydelig måte, og man må gå ut fra at opplysningen har virket inn på avtalen. En bolig som har blitt brukt i en viss tid, har vanligvis blitt utsatt for slitasje, og skader kan ha oppstått. Slik bruksslitasje må kjøper regne med, og det kan avdekkes enkelte forhold etter overtakelse som gjør utbedringer nødvendig. Normal slitasje og skader som trenger utbedring, er innenfor hva kjøper må forvente, og vil ikke utgjøre en mangel. Boligen kan også ha en mangel hvis opplyst areal avviker fra faktisk størrelse. Avviket må være minst 2 prosent, og minst 1 kvadratmeter. Det er likevel ikke en mangel dersom selger godtgjør at kjøperen ikke la vekt på opplysningen, jf. avhendingsloven § 3-3 (2). Ved beregning av et eventuelt prisavslag eller erstatning, må kjøper selv dekke tap/kostnader opp til et beløp på kr 10 000 (egenandel). Egenandel kommer først på tale når det er konstatert mangel ved eiendommen. Hvis kjøper ikke er forbruker, selges eiendommen "som den er", og selgers ansvar er da begrenset, jf. avhl. § 3-9, første ledd 2. pkt. Avhl. § 3-3 (2) fravikes, og hvorvidt et innendørs arealavvik karakteriseres som en mangel vurderes etter avhl. § 3-8. Informasjon om kjøpers undersøkelsesplikt, herunder oppfordringen om å undersøke eiendommen nøye, gjelder også for kjøpere som ikke anses som forbrukere. Med forbrukerkjøp menes kjøp av eiendom når kjøperen er en fysisk person som ikke hovedsakelig handler som ledd i næringsvirksomhet.
Budgivning
Budgivning i forbrukerforhold Budgivere oppfordres til å legge inn bud elektronisk. Dette gjøres på eiendommens hjemmeside på aktiv.no, ved å bruke «Gi bud»-knappen. Ved elektronisk budgivning, samtykker budgiver til elektronisk kommunikasjon. Eiendomsmegler skal legge til rette for en forsvarlig avvikling av budrunden og kan ikke videreformidle bud med en kortere akseptfrist enn kl. 12.00 første virkedag etter siste annonserte visning. Etter klokken 11:30 anbefaler vi akseptfrist på minimum 30 minutter. Bud bør legges inn i god tid før konkurrerende buds akseptfrist utløper. For øvrig henvises til forbrukerinformasjon om budgivning i salgsoppgaven. Oppdragsgiver er oppfordret til å ikke ta imot bud direkte fra budgiver, men å henvise budgiver videre til megler. Som kjøper vil du få forelagt kopi av budjournal. Alle bud vil bli gjort kjent for kjøper og selger i handelen. Øvrige budgivere kan be om å få en kopi av budjournal i anonymisert form. Budgivning utenfor forbrukerforhold Budgivere oppfordres til å legge inn bud elektronisk. Dette gjøres på eiendommens hjemmeside på aktiv.no, ved å bruke «Gi bud»-knappen. Ved elektronisk budgivning, samtykker budgiver til elektronisk kommunikasjon. Det anbefales at hvert bud har en akseptfrist som muliggjør en forsvarlig avvikling av budrunden. Vi anbefaler minimum 30 minutter akseptfrist. Oppdragsgiver er oppfordret til å ikke ta imot bud direkte fra budgiver, men å henvise budgiver videre til megler. Opplysningene i salgsoppgaven er godkjent av selger. Alle interessenter oppfordres imidlertid til grundig besiktigelse av eiendommen, gjerne sammen med fagmann før bud inngis. Etter aksept av bud, vil eiendommens salgssum bli meddelt de som ev. måtte etterspørre denne. Eiendommens salgssum vil bli offentlig tilgjengelig ved overføring av hjemmel.
Omk. Kjøper beskrivelse
2 650 000 (Prisantydning) -------------------------------------------------------- Omkostninger 66 250 (Dokumentavgift) 260 (Panteattest kjøper) 545 (Tinglysningsgebyr pantedokument) 545 (Tinglysningsgebyr skjøte) 10 900 (Boligkjøperforsikring ? fem års varighet (valgfritt)) 2 800 (Boligkjøperforsikring Help Pluss - ett års varighet (valgfritt)) -------------------------------------------------------- 67 600 (Omkostninger totalt) 78 500 (med Boligkjøperforsikring - fem års varighet) 81 300 (med Boligkjøperforsikring inkludert ett år med Help Pluss) -------------------------------------------------------- 2 717 600 (Totalpris. inkl. omkostninger) 2 728 500 (Totalpris. inkl. omkostninger (med Boligkjøperforsikring - fem års varighet)) 2 731 300 (Totalpris. inkl. omkostninger (med Boligkjøperforsikring inkludert ett år med Help Pluss)) -------------------------------------------------------- Regnestykket forutsetter at det kun tinglyses ett pantedokument og at eiendommen selges til prisantydning. Det tas forbehold om endringer i offentlige avgifter/gebyrer.
Omk. kjøper beløp
67600
Betalingsbetingelser
Med mindre annet er avtalt forutsettes det at kjøpesum inkludert omkostninger er innbetalt og disponibelt på meglerforetakets klientkonto innen overtakelse. Kjøpesummen skal innbetales fra norsk finansinstitusjon og/eller fra kjøpers egen konto i norsk finansinstitusjon.
Hvitvaskingsreglene
Megler har plikt til å gjennomføre kundetiltak. Hvis kjøper ikke bidrar til at megler får gjennomført kundetiltak og dette fører til at transaksjonen ikke kan gjennomføres eller blir forsinket, misligholder kjøper avtalen. Etter 30 dager er misligholdet vesentlig. Dette gir selger rett til å heve og gjennomføre dekningssalg for kjøpers regning.
Personopplysningsloven
Personopplysninger blir behandlet i samsvar med personopplysningsloven.
Boligselgerforsikring
Selger har tegnet boligselgerforsikring som dekker selgers ansvar etter avhendingsloven begrenset oppad til MNOK 14. I den forbindelse har selger utarbeidet en egenerklæring som kjøper bør gjøre seg kjent med før budgivning.
Boligkjøperforsikring
Vedlagt i salgsoppgaven følger informasjon om Boligkjøperforsikring Pluss og Boligkjøperforsikring fra HELP Forsikring AS. Boligkjøperforsikring er en rettshjelpsforsikring som gir trygghet og profesjonell juridisk hjelp dersom det oppdages uventede feil eller mangler ved boligen de neste fem årene. Boligkjøperforsikring Pluss har samme dekning som boligkjøperforsikring, med tillegg av fullverdig advokathjelp på viktige rettsområder i privatlivet. Les mer om begge forsikringene i vedlagte materiell eller på help.no. Det gjøres oppmerksom på at boligkjøperforsikring kun kan tegnes av forbruker. Meglerforetaket mottar kr 4 900/5 100/5 800 i kostnadsgodtgjørelse, avhengig av boligtype, samt et tillegg på kr 1 000 ved salg av Boligkjøperforsikring Pluss.
Meglers vederlag
Det er avtalt provisjonsbasert vederlag tilsvarende 1,50% av kjøpesum for gjennomføring av salgsoppdraget. I tillegg er det avtalt at oppdragsgiver skal dekke: 3 000 Garantipremie/inneståelse 3 900 Kommunale opplysninger 23 000 Markedspakke 7 750 Oppgjørshonorar 3 250 Søk eiendomsregister og elektronisk signering 2 500 Tilretteleggingsgebyr 545 Tinglysningsgebyr pantedokument med urådighet Totalt kr: 85 400 Dersom handel ikke kommer i stand eller oppdraget sies opp, har megler krav et rimelig vederlag stort kr 20 000 for utført arbeid.

